RUS_02

Wohnquartier im Ruskeasuo, Helsinki FI, 2013

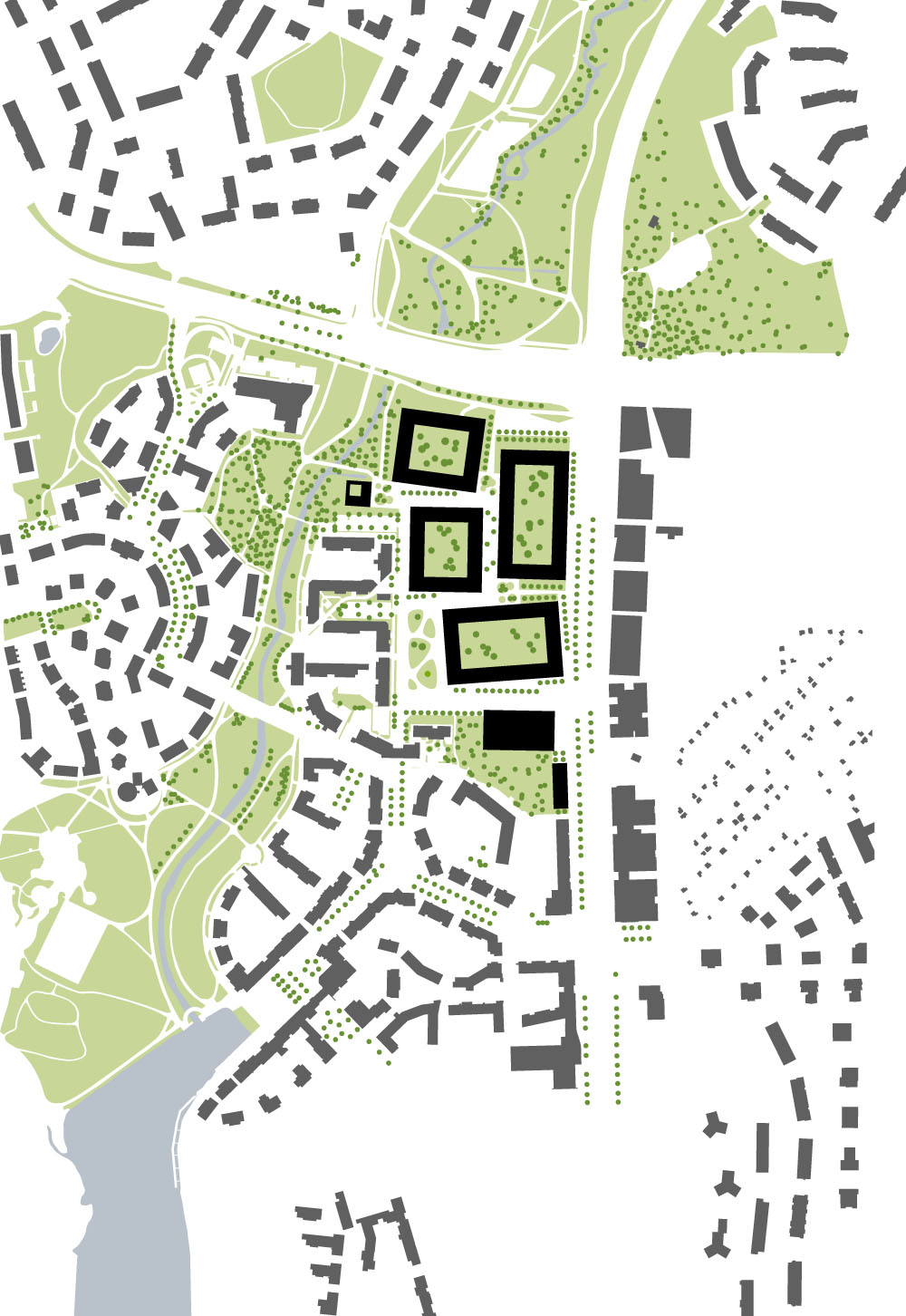
Auf dem ehemaligen Universitätsgelände, das prominent an einer der Eingangs-situationen in die Stadt Helsinki gelegen ist, entsteht ein Wohnquartier. Um den neuen Standort für eine urbane Nachbarschaft zu definieren wird selbstbewusst eine Blocktypologie geschaffen, die durch Hochhäuser ergänzt wird. Die Blockkonstellation bildet zur bestehenden Nachbarschaft einen neuen Quartiersplatz aus und wird so zum integralen Bestandteil des Stadtteils Ruskeasuo. Durch eine leichte Drehung der Blöcke entstehen untergeordnete Quartiersplätze an den Berührungspunkten. Ein differenziertes Wegenetz verknüpft die ruhigen, grosszügigen Innenhöfe untereinander und bindet das Areal an die Umgebung an. Mit maximaler Effizienz werden Parkgaragen in die Höfe integriert, die Grünhöfe sind entsprechend erhöht und besser belichtet. Mit einer Tiefe von vierzehn Metern sind die Blöcke so konzipiert, dass ausreichend Spielraum gewährleistet ist um Loggien und Balkone zu integrieren. Ein übergreifendes Farbkonzept, differenziert nach Blöcken sowie Hof- und Aussenfassaden, schafft Identität und bindet gleichzeitig auch unterschiedliche Fassadengestaltungen effektiv zusammen.

Auftraggeber Stadt Helsinki
Zeit 2013-2014
Team Mirjam Niemeyer, Tommi Mäkynen, Antti Ahlava, Jonathan Kischkel, Lauri Salminen