New Aviation Museum, Vantaa FI, 2014
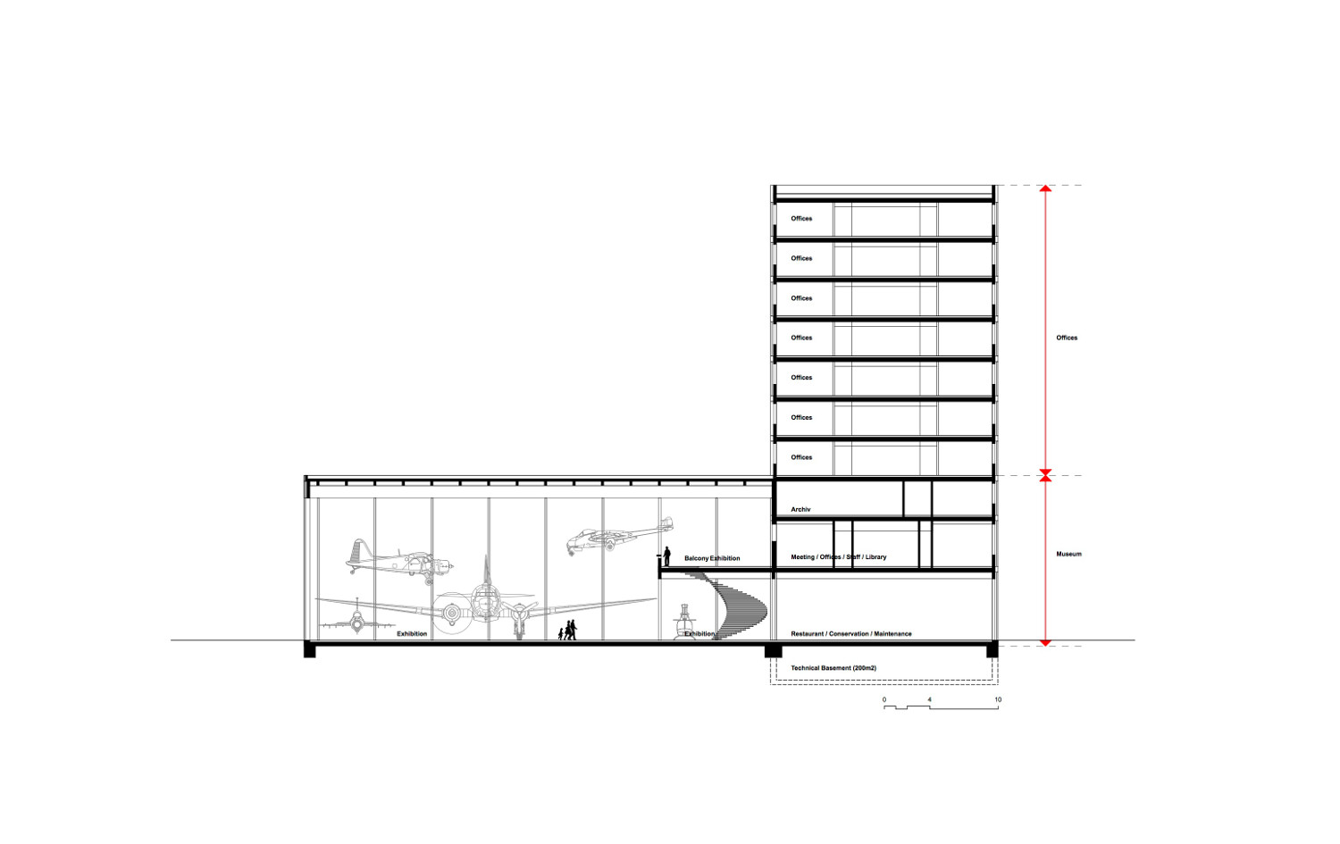
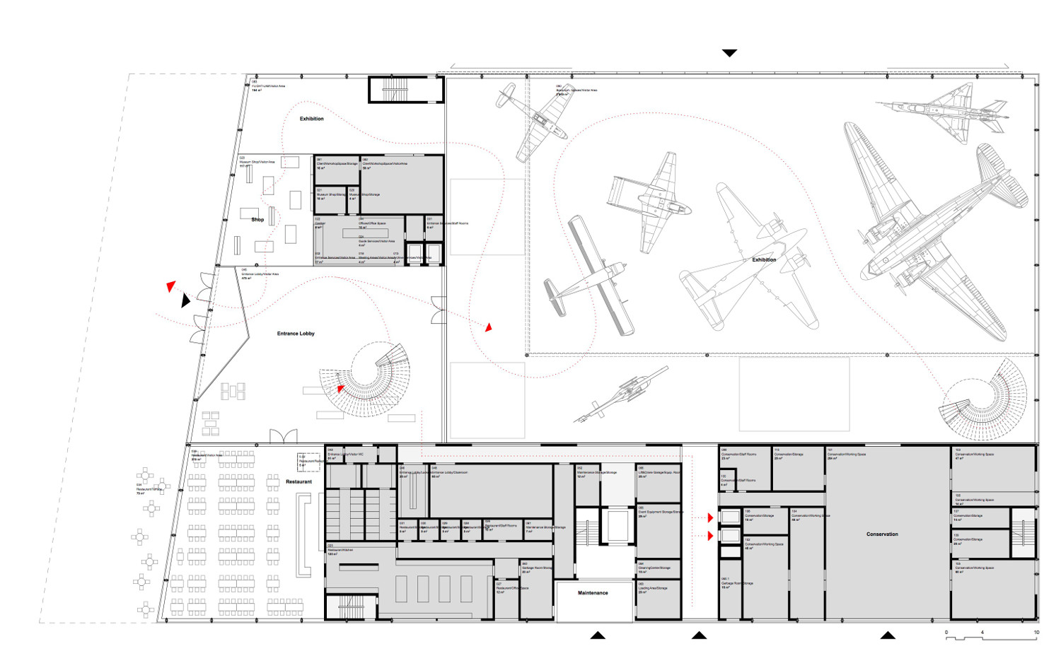
HZ wurde gebeten ein Gebäudekonzept für das neue Luftfahrtmuseum Helsinki zu entwickeln und dafür mögliche neue Standorte im Aviapolis Masterplan zu evaluieren. Um das Beste aus den begrenzten Ressourcen zu machen und um die Landnutzung zu optimieren entwickelten wir ein kompaktes simples Einzelvolumen, das seine Referenz in der Luftfahrt-Infrastruktur sucht. Der einem Hangar ähnelnde Bau bietet eine flexibel nutzbare Ausstellungsfläche unter einem grossen Dach. Umgeben von einer Fassade aus Glas und Stahl verwandelt sich das Museum zu einem urbanen Schaufenster, das die Geschichte der finnischen Luftfahrt zeigt und die Umgebung belebt. Das umfangreiche Raumprogramm (Ausstellungsflächen, Foyer, Cafeteria, Büroräume, Werkstätten, Archive, Konferenzräume und Simulatoren) wurde in einem Spiel von rechteckigen Formen in Boxen untergebracht um die offene Struktur zu erhalten und die Nutzungsanforderungen der einzelne Räume zu gewährleisten.
Auftraggeber LAK
Zeit 2014
Team Tommi Mäkynen, Mirjam Niemeyer, Michelangelo D’Ettorre, Roberto Schumacher
Zusammenarbeit Krayer Architektur, Andreas Buschmann





