Balboa Bar and Gym, Zürich CH, 2015
Balboa ist ein urbanes Fitness Start-up mit seinem ersten festen Standort im Bankenviertel von Zürich.
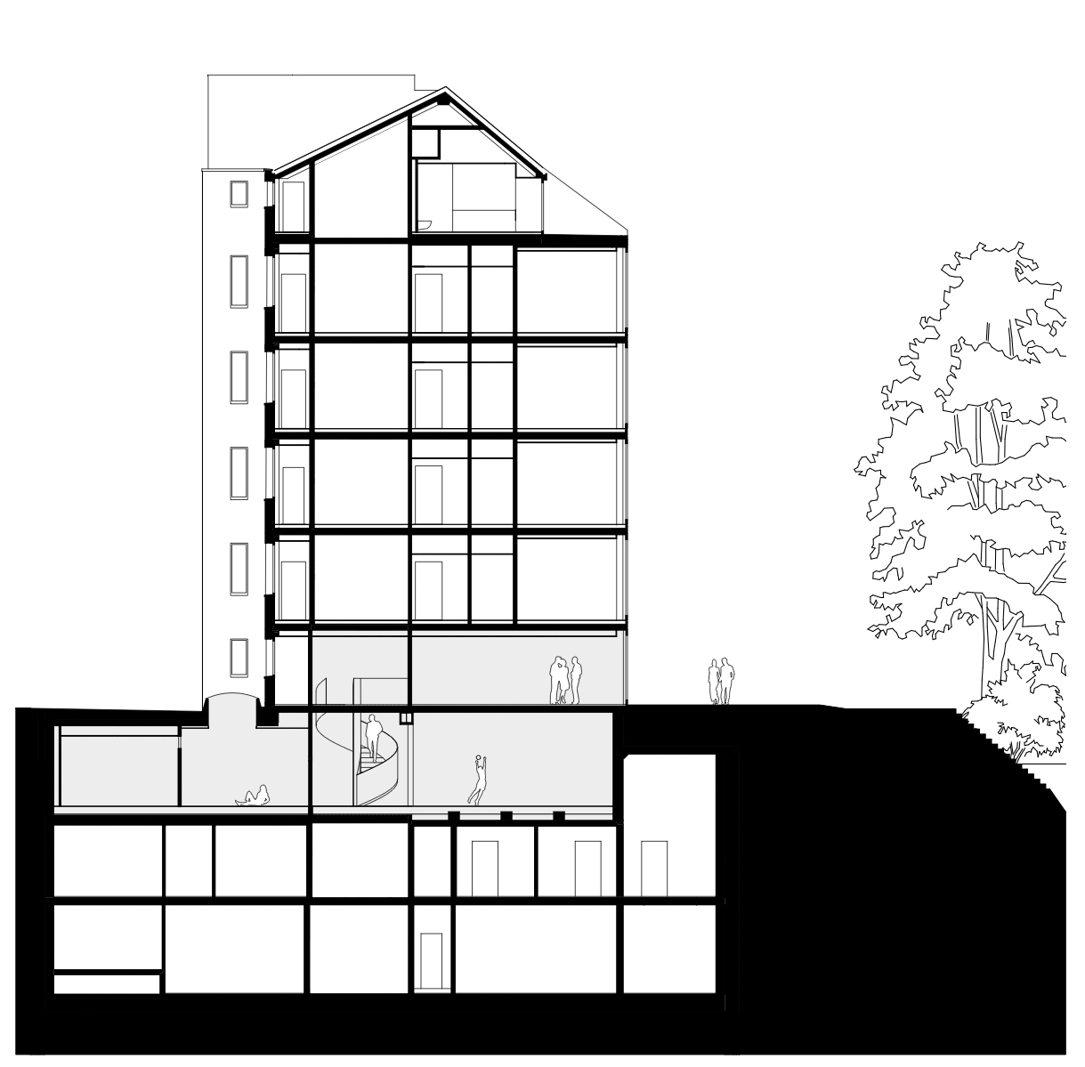
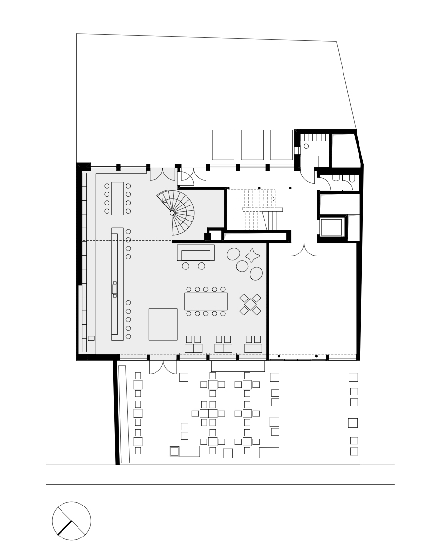
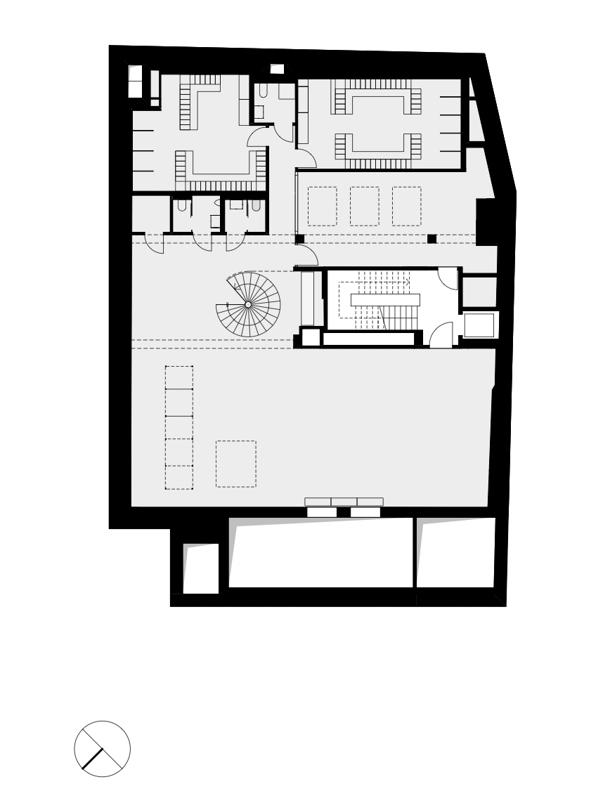
Im Erdgeschoss be ndet sich die eigenständig geführte Bar, das Fitness-Studio liegt im Untergeschoss. Mit der Beziehung zwischen diesen beiden Nutzungen wird bewusst gespielt. Verschiedene Interaktionen zwischen den unterschiedlichen Nutzergruppen werden durch Blick- und Funktionsbezüge inszeniert.
Großzügige Einschnitte im Boden ermöglichen visuelle Verbindungen zwischen den beiden Geschossen und bringen dazu Naturlicht in das dunkle Untergeschoss. Grosse Fensterfronten verknüpfen den Barraum mit dem vorgelagerten Terrassenbereich.
Der Entwurf basiert auf Funktionalität, Authentizität und dem Schaffen von räumlichen Angeboten, welche die Gemeinschaft von Balboa dabei unterstützen zu wachsen: Ein langer Bartresen, ein zentraler grosser Trinkbrunnen, ein grosser Holztisch an dem gut 12 Personen Platz nden und die gemeinsam genutzten WCs in der “Mixed-Zone” im Untergeschoss ermöglichen zufällige Kommunikation und Interaktion zwischen den Besuchern.
Um den Gesamteindruck urban, funktional und authentisch zu halten und um dem knappen Budget gerecht zu werden wurde nach dem Motto «No-Frills» gearbeitet. Die Rohbau-Ober ächen wurden -wo möglich- so belassen. Kontraste dazu entstehen durch den Einsatz von Schwarzstahl, Signalrotem Anstrich, Kupfer, hellem Birkenholz und Leder.
Auftraggeber Renzo Balboa AG
Zeit 2015-2016
Team Tommi Mäkynen, Mirjam Niemeyer
Zusammenarbeit Lucespazio


